ID CP2881045

COMISION 0! Duplex finalizat. Panouri solare. Finisaje calitative.

ID CP2881045

132,000 € (negociabil) TVA inclus

Casă / Vilă cu 3 camere de vânzare
Exterior Sud, Timisoara
86 mp
2025

ZayHome va propune spre vanzare cu COMISION 0 , case tip duplex cu regim de inaltime Parter respectiv Parter+Etaj situate in Mosnita Noua.

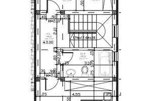
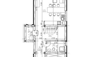
Compartimentare si suprafata:

- Hol acces cu loc pentru dressing, baie, camera de zi + bucatarie, dormitor, ,hol cu spatiu depozitare, dormitor cu loc pentru dressing si baie proprie, terasa

- Suprafata utila 86 mp + 12 mp terasa , teren 320 mp

Finisaje si dotari:

- Centrala proprie cu incalzire prin pardoseala

- Termostat individual de ambient în fiecare cameră

- Panouri fotovoltaice 3,5 kw

- Sistem electric- Gewiss

- Usi interioare marca PortaDoors

-Gresie, faianta marca Tempini

- Parchet laminat

- Ferestre cu tamplarie PVC si geam termopan tripan Salamander

Detalii constructive:

- Ziduri din caramida Porotherm : 30 cm perete exterior, 25 cm perete interior

- Termoizolatie exterioara polistiren 10 cm

- Placa de beton

- Pod izolat

- Acoperis din tigla

Utilitati: curent Trifazic, gaz, apa , fosa cu drenaj.

Casa se preda finisata la cheie.

Fiind multe de vazut si de prezentat in realitate, te invitam la o intalnire in urma careia vei obtine raspunsuri la toate intrebarile tale. Lasa procesul de achizitie al imobilului mult visat in seama noastra, vei avea mai putine griji si vei beneficia de consultanta imobiliara, financiar-bancara si juridica pe tot parcusul acestuia.

Citește mai mult

  • Număr camere
    3
  • Dormitoare
    2
  • Număr bucătării
    1
  • Număr băi
    2
  • Geam la baie
    Da
  • Număr terase
    1
  • Număr locuri parcare
    2
  • Disponibilitate
    Imediat
  • Tip casă
    Duplex
  • Stare interior
    Nou
  • Anul finisării
    2026
  • Suprafață utilă
    86 mp
  • Suprafață teren
    320 mp
  • Suprafață terasă
    12 mp
  • Acoperiș
    Țiglă
  • Stadiu construcție
    Finalizată
  • An construcție
    2025
  • Construcție nouă
    Da
  • De la dezvoltator
    Da
  • Tip construcție
    Cărămidă
  • Număr etaje clădire
    1
  • Are pod
    Da
  • Clasă Energetică
    A

Facilități

Acoperiș
Apă
Apometre
Canalizare
CATV
Centrală proprie
Contor electric
Contor gaz
Curent
Curte
Debara
Faianță
Ferestre PVC
Gaz
Geamuri tripan
Grădină proprie
Gresie
Iluminat stradal
Încălzire prin pardoseală
Interfon
Internet
Izolație exterioară
Mijloace de transport în comun
Parcare deschisă
Parchet laminat
Străzi asfaltate
Telefon
Ușă intrare metal
Uși interior MDF
Vopsea lavabilă
WC Serviciu
Alexandru Zaiba - Zay Home
Alexandru Zaiba
Consultant imobiliar

0738416794


Solicită chiar acum o vizionare
Telefon
Sună acum Solicită vizionare
Necesare:

Site-ul nu poate funcționa corect fără aceste cookie-uri. Vezi cookie-urile

Statistică:

Strângem statistici anonime despre voi, vizitatorii unici, pentru a vă îmbunătăți experiența dumneavoastră. Vezi cookie-urile

Marketing:

Pentru a ne promova mai eficient serviciile noastre, folosim cookies pentru a vă identifica și a vă oferi proprietăți și servicii personalizate. Vezi cookie-urile

Acest site folosește cookies, află detalii. Alege ce tipuri de cookies dorești să permitem: