ID CP2756079

Decomandat. Gradina proprie 62 mp. Bloc finalizat.

Această proprietate nu mai este activă,
te invităm să vizualizezi proprietăți similare

ID CP2756079

83,050 €

Apartament cu 1 camere de vânzare
Giroc
40 mp
2025

ZayHome va propune spre vanzare un bloc nou finalizat format din apartament cu 1,2 si 3 camere in Giroc, in apropiere de hotelul IQ.

Apartamentele se predau finisate la "cheie" si racordate la toate utilitatile (apa, gaz, canal, curent).

Toate apartamentele beneficiaza 1 loc de parcare inclus in pret.

Modele de apartamente cu 1 camere:

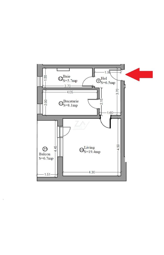
- 40 mp utili + balcon 6.5 mp + gradina proprie 62 mp, disponibil la Parter - Pret: 83.050 Euro

- 43 mp utili + balcon 9 mp + gradina proprie 52 mp, disponibil la Parter - Pret: 87.150 Euro

DETALII TEHNICE:

Izolatie si eficienta termica:

- Termosistem exterior din polistiren EPS80, grosime de 15 cm

- Ferestre DECEUNICK termopan cu profil PVC, 6 camere si sticla tripan LOW-E

Sistem de incalzire si climatizare:

- Centrala proprie pe gaz de 24 kWBosch

- Incalzire in pardoseala TECE

- Cablaj pentru termostate de ambient in fiecare camera

- Aparat de aer conditionat inclus

Sistem electric:

- Aparataje Gewiss/ Legrand

- Interfon audio-video

- Iluminat exterior

- Camere de supraveghere exterior

- Bariera acces auto

- Statie de incarcare pentru masini electrice

FINISAJE INTERIOARE:

- Parchet compatibil cu incalzirea in pardoseala

- Gresie si faianta de calitate superioara Geotiles si Baldocer

- Usa de intrare in apartament metalica

- Glafuri de granit negru exterior

- Scari interioare metalice imbracate in lemn

Lasa procesul de achizitie al imobilului mult visat in seama noastra, vei avea mai putine griji si vei beneficia de consultanta imobiliara, financiar-bancara si juridica pe tot parcusul acestuia. Te asteptam cu drag la o vizionare!

Citește mai mult

  • Tip apartament
    Apartament
  • Compartimentare
    Decomandat
  • Număr camere
    1
  • Dormitoare
    1
  • Număr bucătării
    1
  • Număr băi
    1
  • Geam la baie
    Da
  • Etaj
    Parter
  • Suprafață utilă
    40 mp
  • Suprafață construită
    48 mp
  • Suprafață totală
    47 mp
  • Disponibilitate
    Imediat
  • Confort
    1
  • Stare interior
    Ultrafinisat
  • Număr balcoane
    1
  • Număr locuri parcare
    1
  • Imobil
    Bloc de apart.
  • Stadiu construcție
    Finalizată
  • An construcție
    2025
  • Construcție nouă
    Da
  • Tip construcție
    Cărămidă
  • Număr etaje clădire
    3

Facilități

Acoperiș
Aer condiționat
Apă
Apometre
Bucătărie deschisă
Bucătărie închisă
Cabină de duș
Cadă
Canalizare
CATV
Centrală proprie
Contor electric
Contor gaz
Curent
Faianță
Ferestre PVC
Gaz
Geamuri tripan
Gresie
Iluminat stradal
Încălzire prin pardoseală
Internet
Izolație exterioară
Mijloace de transport în comun
Parcare deschisă
Parchet
Străzi asfaltate
Supraveghere video
Telefon
Ușă intrare metal
Uși interior celulare
Uși interior MDF
Videointerfon
Vopsea lavabilă
Necesare:

Site-ul nu poate funcționa corect fără aceste cookie-uri. Vezi cookie-urile

Statistică:

Strângem statistici anonime despre voi, vizitatorii unici, pentru a vă îmbunătăți experiența dumneavoastră. Vezi cookie-urile

Marketing:

Pentru a ne promova mai eficient serviciile noastre, folosim cookies pentru a vă identifica și a vă oferi proprietăți și servicii personalizate. Vezi cookie-urile

Acest site folosește cookies, află detalii. Alege ce tipuri de cookies dorești să permitem: