ID CP2870727

Asfalt. Spatiu pod. Balcon mare.

ID CP2870727

82,500 € TVA inclus

Apartament cu 2 camere de vânzare
Giroc
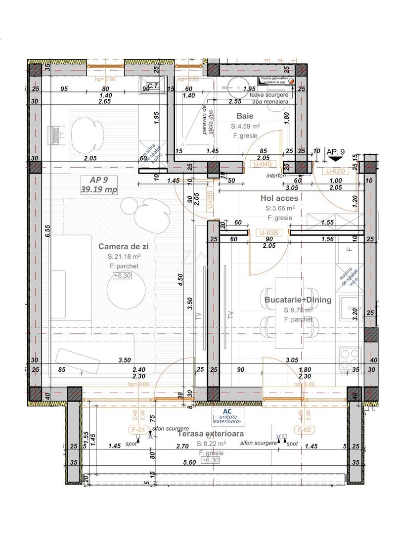
39.19 mp
2025

ZayHome va propune un ansamblu de blocuri noi la cateva minute de Timisoara, mai exact in Giroc, ferit de aglomeratia din oras dar totodata cu acces facil la mijloacele de trasport in comun, institutii de invatamant si la magazinele de tip supermarket (Lidl, Profi, Pepco, Carrefour si Kik).

Regimul de inaltime P+3E, iar blocurile sunt formate din apartamente cu 2 camere. Fiecare apartament dispune de 1 loc de parcare inclus in pret.

Modele de apartamente cu 2 camere:

- 39.19 mp + 8 mp terasa disponibil la etajele 2,3 - Pret 82.500 euro

- 48.91 mp + 7,7 mp terasa disponibil la etajul 3 - Pret 93.000 euro

Termen de predare Martie 2026. Apartamentele se predau finisate la "cheie" si racordate la toate utilitatile (apa, canalizare, curent si gaz).

**Fotografiile sunt cu titlu de prezentare din proiecte anterioare.

Lasa procesul de achizitie al imobilului mult visat in seama noastra, vei avea mai putine griji si vei beneficia de consultanta imobiliara, financiar-bancara si juridica pe tot parcusul acestuia.

Citește mai mult

  • Tip apartament
    Apartament
  • Număr camere
    2
  • Dormitoare
    1
  • Număr bucătării
    1
  • Număr băi
    1
  • Geam la baie
    Da
  • Etaj
    2, 3
  • Suprafață utilă
    39.19 mp
  • Suprafață construită
    48 mp
  • Suprafață totală
    48 mp
  • Disponibilitate
    Martie 2026
  • Confort
    1
  • Stare interior
    Nou
  • Număr balcoane
    1
  • Număr locuri parcare
    1
  • Imobil
    Bloc de apart.
  • Stadiu construcție
    În construcție
  • An construcție
    2025
  • Construcție nouă
    Da
  • De la dezvoltator
    Da
  • Tip construcție
    Cărămidă
  • Număr etaje clădire
    3

Facilități

Acoperiș
Apă
Apometre
Canalizare
CATV
Centrală proprie
Contor electric
Contor gaz
Curent
Faianță
Ferestre PVC
Gaz
Geamuri tripan
Gresie
Iluminat stradal
Încălzire prin pardoseală
Interfon
Internet
Izolație exterioară
Mijloace de transport în comun
Parcare deschisă
Parchet laminat
Străzi asfaltate
Telefon
Ușă intrare metal
Uși interior celulare
Uși interior PVC
Vopsea lavabilă
Alexandra Opatchi - Zay Home
Alexandra Opatchi
Consultant imobiliar

0799889080


Solicită chiar acum o vizionare
Telefon
Sună acum Solicită vizionare
Necesare:

Site-ul nu poate funcționa corect fără aceste cookie-uri. Vezi cookie-urile

Statistică:

Strângem statistici anonime despre voi, vizitatorii unici, pentru a vă îmbunătăți experiența dumneavoastră. Vezi cookie-urile

Marketing:

Pentru a ne promova mai eficient serviciile noastre, folosim cookies pentru a vă identifica și a vă oferi proprietăți și servicii personalizate. Vezi cookie-urile

Acest site folosește cookies, află detalii. Alege ce tipuri de cookies dorești să permitem: