ID CP2630441

Bloc la asfalt. Decomandat. Etaj 1. Loc de parcare.

ID CP2630441

97,800 €

Apartament cu 2 camere de vânzare
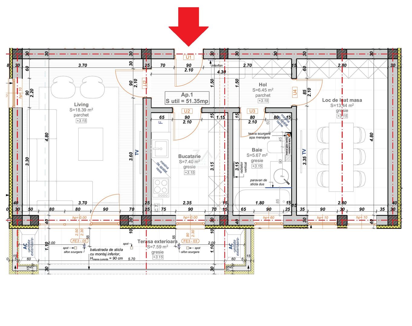
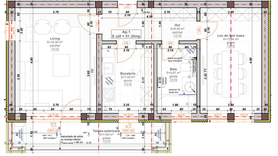
Giroc
52 mp
2024

ZayHome va propune un bloc nou in Giroc, ferit de aglomeratia din oras dar totodata cu acces facil la mijloacele de trasport in comun, gradinite private si la magazinele de tip supermarket (Lidl, Profi, Pepco, Carrefour si Kik).

Imobilul are regimul de intalnite P+3E si este format din apartamente cu 2 camere. Fiecare apartament dispune de 1 loc de parcare inclus in pret.

Modele de apartamente:

- 42 mp utili + balcon 8 mp - disponibil la Etaj 1, Etaj 2, Etaj 3 - Pret: 84.700 Euro

- 46 mp utili + balcon 8 mp - disponibil la Etaj 1, Etaj 2, Etaj 3 - Pret: 90.600 Euro

- 52 mp utili + balcon 8 mp - disponibil la Etaj 1, Etaj 2, Etaj 3 - Pret: 97.800 Euro

Dotari:

- Centrala proprie cu incalzire prin pardoseala

- Gresie si faianta Tempini

- Usi interioare Porta Door

- Loc de parcare

Termen de predare Septembrie 2025. Apartamentele se predau finisate la "cheie" si racordate la toate utilitatile (apa, canalizare, curent si gaz).

**Fotografiile sunt cu titlu de prezentare din proiecte anterioare.

Fiind multe de vazut si de prezentat in realitate, te invitam la o intalnire in urma careia vei obtine raspunsuri la toate intrebarile tale. Lasa procesul de achizitie al imobilului mult visat in seama noastra, vei avea mai putine griji si vei beneficia de consultanta imobiliara, financiar-bancara si juridica pe tot parcusul acestuia.

Citește mai mult

  • Tip apartament
    Apartament
  • Număr camere
    2
  • Dormitoare
    1
  • Număr bucătării
    1
  • Număr băi
    1
  • Geam la baie
    Da
  • Etaj
    1, 2, 3
  • Suprafață utilă
    52 mp
  • Suprafață construită
    62.4 mp
  • Suprafață totală
    60 mp
  • Disponibilitate
    Imediat
  • Confort
    1
  • Stare interior
    Nou
  • Număr balcoane
    1
  • Număr locuri parcare
    1
  • Imobil
    Bloc de apart.
  • Stadiu construcție
    Finalizată
  • An construcție
    2024
  • Construcție nouă
    Da
  • Tip construcție
    Cărămidă
  • Număr etaje clădire
    3
  • Are pod
    Da

Facilități

Acoperiș
Apă
Apometre
Bucătărie deschisă
Bucătărie închisă
Cadă
Canalizare
CATV
Centrală proprie
Contor electric
Contor gaz
Curent
Faianță
Ferestre PVC
Gaz
Geamuri tripan
Gresie
Iluminat stradal
Încălzire prin pardoseală
Internet
Izolație exterioară
Mijloace de transport în comun
Parcare deschisă
Parchet laminat
Străzi asfaltate
Telefon
Ușă intrare metal
Uși interior MDF
Videointerfon
Vopsea lavabilă
Alexandra Opatchi - Zay Home
Alexandra Opatchi
Consultant imobiliar

0799889080


Solicită chiar acum o vizionare
Telefon
Sună acum Solicită vizionare
Necesare:

Site-ul nu poate funcționa corect fără aceste cookie-uri. Vezi cookie-urile

Statistică:

Strângem statistici anonime despre voi, vizitatorii unici, pentru a vă îmbunătăți experiența dumneavoastră. Vezi cookie-urile

Marketing:

Pentru a ne promova mai eficient serviciile noastre, folosim cookies pentru a vă identifica și a vă oferi proprietăți și servicii personalizate. Vezi cookie-urile

Acest site folosește cookies, află detalii. Alege ce tipuri de cookies dorești să permitem: