ID CP2796325

Comision 0. Gradina proprie 77 mp. Loc de parcare.

ID CP2796325

112,000 € TVA inclus

Apartament cu 2 camere de vânzare
Freidorf, Timisoara
55 mp
2025

Bloc nou in zona Freidorf cu apartamente cu 2 camere, intr-o locatie excelenta cu acces facil catre zone comerciale (supermaketuri), institutii de invatamant si mijloace de transport in comun. In apropiere exista si un parc generos pretabil pentru toate varstele.

Apartamentele se predau finisate la "cheie" si racordate la toate utilitatile (apa, canal. curent si gaz). Cele de parter beneficiaza de gradina proprie, iar cele de la etajul 3 de terase generoase.

Fiecare apartament dispune de 1 loc de parcare inclus in pret.

Blocul dispune de lift.

Modele de apartamente cu 2 camere:

PARTER cu gradina proprie:

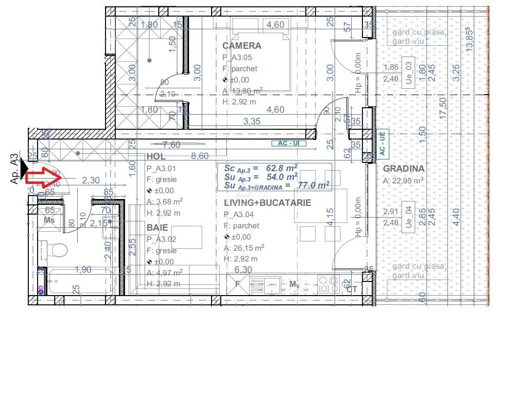
- 54 mp utili + 77 mp de gradina proprie - Pret: 112.000 Euro

Etaj:

- 51.3 mp utili + 5 mp balcon - Pret: 93.000 Euro

- 64.2 mp utili + 5 mp balcon - Pret: 122.000 Euro

* Se accepta achizitionarea prin intermediul unui credit bancar.

Termen predare martie 2026.

Lasa procesul de achizitie al imobilului mult visat in seama noastra, vei avea mai putine griji si vei beneficia de consultanta imobiliara, financiar-bancara si juridica pe tot parcusul acestuia.

Citește mai mult

  • Tip apartament
    Apartament
  • Număr camere
    2
  • Dormitoare
    1
  • Număr bucătării
    1
  • Număr băi
    1
  • Geam la baie
    Da
  • Etaj
    Parter
  • Suprafață utilă
    55 mp
  • Suprafață construită
    60 mp
  • Suprafață curte
    77 mp
  • Disponibilitate
    Imediat
  • Confort
    1
  • Stare interior
    Nou
  • Număr locuri parcare
    1
  • Imobil
    Bloc de apart.
  • Stadiu construcție
    Finalizată
  • An construcție
    2025
  • Construcție nouă
    Da
  • Tip construcție
    Cărămidă
  • Număr etaje clădire
    3

Facilități

Acoperiș
Apă
Apometre
Cadă
Canalizare
CATV
Centrală proprie
Contor electric
Contor gaz
Curent
Faianță
Ferestre PVC
Gaz
Geamuri tripan
Grădină proprie
Gresie
Iluminat stradal
Încălzire prin pardoseală
Interfon
Internet
Izolație exterioară
Mijloace de transport în comun
Parchet laminat
Străzi asfaltate
Telefon
Ușă intrare metal
Uși interior MDF
Vopsea lavabilă
Alexandra Opatchi - Zay Home
Alexandra Opatchi
Consultant imobiliar

0799889080


Solicită chiar acum o vizionare
Telefon
Sună acum Solicită vizionare
Necesare:

Site-ul nu poate funcționa corect fără aceste cookie-uri. Vezi cookie-urile

Statistică:

Strângem statistici anonime despre voi, vizitatorii unici, pentru a vă îmbunătăți experiența dumneavoastră. Vezi cookie-urile

Marketing:

Pentru a ne promova mai eficient serviciile noastre, folosim cookies pentru a vă identifica și a vă oferi proprietăți și servicii personalizate. Vezi cookie-urile

Acest site folosește cookies, află detalii. Alege ce tipuri de cookies dorești să permitem: